Irchenrieth
Irchenrieth
 
Bürgerservice Baugebiete » Baugebiet Süd-West II

Baugebiet Süd-West II

Bei Fragen bzw. Interesse an einem Bauplatz in Irchenrieth wenden Sie sich bitte an uns!

 

  = freie Bauplätze

 

Liste aller freien Bauplätze

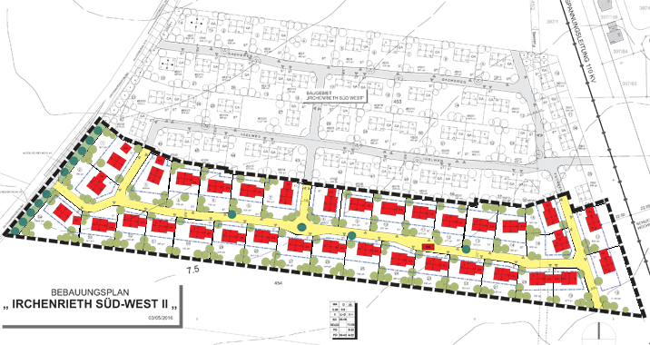
Karte des Baugebietes

 

 

*
Preise incl. Erschließungskosten

Kinderermäßigung:
Die Ermäßigung beträgt für jedes Kind unter 14 Jahren 2.400,00 €.
Die Ermäßigung ist begrenzt auf maximal 7.200,00 € (drei Kinder) je Bauparzelle.

Wappen von Irchenrieth

Öffnungszeiten

Rathaus

Dienstag 14:00 - 17:00 Uhr
Donnerstag 14:00 - 17:00 Uhr

Verwaltungsgem. Schirmitz

Montag 08:00 - 12:00 Uhr
Dienstag 08:00 - 12:00 Uhr und 14:00 - 17:00 Uhr
Mittwoch 08:00 - 12:00 Uhr
Donnerstag 08:00 - 12:00 Uhr und 14:00 - 17:00 Uhr
Freitag 08:00 - 12:00 Uhr

Adresse

Gemeinde Irchenrieth

Bürgermeister Josef Hammer
Landrat-Christian-Kreuzer-Str. 6
92699 Irchenrieth

Tel.: +49 (09659) 772

Fax: +49 (09659) 649

© 2025 Gemeinde Irchenrieth